- Woonoppervlakte
- Circa 193 m²
- Perceeloppervlakte
- Circa 335 m²
- Bouwjaar
- Gebouwd in 2022
- Aantal kamers
- 8 kamers (7 slaapkamers)
English version below.
Soms kom je zo’n woning tegen waarvan je direct voelt: dit is er één uit duizenden. Aan de Albert Einsteinstraat 52 staat zo’n bijzonder stijlvol, volledig afgewerkt en omringd door rust en natuur. Hier woon je in de geliefde wijk Nobelhorst met het comfort van luxe afwerking, moderne duurzaamheid en een uitzicht dat elke dag opnieuw verrast.
Deze geweldige vrijstaande woning met mooie ligging aan het bos in Nobelhorst om verliefd op te worden .Een lust voor de ogen. U komt gelijk binnen in een ruime hal met schitterend trappenhuis met vide.
7 slaapkamers en 2 badkamers, luxe keuken met kookeiland
Beneden is er een slaapkamer met badkamer ensuite.
De gehele woning is voorzien van vloerverwarming met koelsystemen en warmtepomp.
Ga voor meer informatie naar alberteinsteinstraat52.nl
Begane grond
Bij binnenkomst voelt de ruimte direct uitnodigend en licht. De begane grond is ruimtelijk opgezet en logisch ingedeeld, met vloerverwarming en een hoogwaardige afwerking die meteen het wooncomfort verhoogt. De luxe keuken is een echte blikvanger—een plek waar koken en samenkomen moeiteloos samengaan. Dankzij de moderne apparatuur, royale opbergmogelijkheden en de hoogwaardige materialen is dit een keuken die past bij het niveau van de rest van de woning. De keuken is uitgerust met een BORA-inductiekookplaat, een combimagnetron, een oven, twee laden-bordenwarmers, een koffiezetapparaat, een vriezer met vijf laden, een koelkast en een vaatwasser. De living kijkt prachtig uit richting het bos, waardoor het dagelijks leven hier rustiger en rijker aanvoelt.
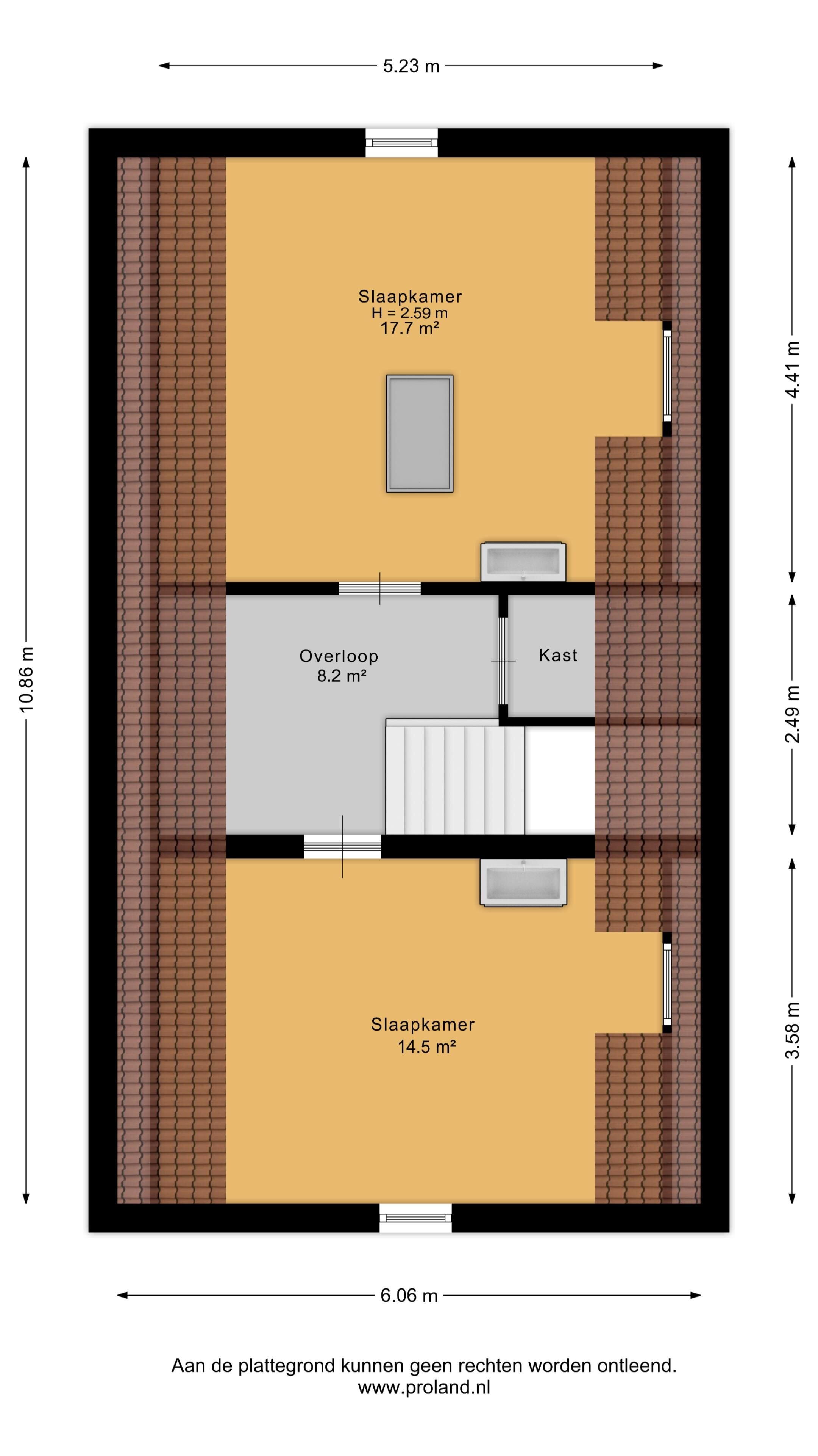
Slaapkamers en badkamers
Met maar liefst zeven ruime slaapkamers is er meer dan genoeg plek voor een groot gezin, een thuiskantoor, hobbyruimte of gasten. De woning is bovendien levensbestendig: één van de slaapkamers en een badkamer bevinden zich op de begane grond, ideaal voor wie graag toekomstbestendig woont. De tweede badkamer op de verdieping is stijlvol en compleet uitgevoerd—praktisch, licht en voorzien van alle comfort.
Tuin
De tuin is een plek om verliefd op te worden: ruim, groen en gericht op het prachtige uitzicht over het aangrenzende bos. Hier lopen regelmatig herten en andere dieren voorbij, waardoor je het hele jaar door het gevoel hebt midden in de natuur te wonen. Tegelijkertijd biedt de tuin volop privacy en ruimte voor meerdere zitplekken. Op eigen terrein is er parkeergelegenheid voor twee auto’s en er is een praktische berging aanwezig.
Ligging:
Deze mooie woning ligt in de geliefde wijk Nobelhorst, waar dorpse architectuur en karakteristieke loop- en fietsbruggetjes het straatbeeld bepalen. Via een nabijgelegen bruggetje sta je binnen één minuut in het bos.
In de buurt, op loopafstand, vind je basisscholen, kinderopvang, baristabar Boon, pannenkoekenhuis Smullen & Spelen en diverse sportfaciliteiten zoals bootcamp, outdoor fitness, de roeivereniging en de 27-holes golfbaan Almeerderhout. Via de A6 en A27 ben je snel in Amsterdam, Utrecht, Amstelveen en ’t Gooi.
Waarom je deze woning niet wilt missen:
* Vrijstaand wonen in de geliefde wijk Nobelhorst;
* Ca. 193 m² woonoppervlak;
* Duurzaam en energiezuinig: warmtepomp, vloerverwarming en zonnepanelen;
* Vloerverwarming heeft ook een koelfunctie;
* Prachtig uitzicht op het bos met herten en andere dieren;
* Luxe afwerking met een hoogwaardig afgewerkte keuken;
* 24 zonnepanelen;
* 7 ruime slaapkamers;
* Parkeren op eigen terrein;
* Slaapkamer met badkamer op de beneden verdieping;
Samengevat
Met ca. 193 m² woonoppervlak, 24 zonnepanelen, een warmtepomp, vloerverwarming én een prachtig stukje Almere als achtertuin, is dit een woning die zowel luxe als rust biedt. Een compleet afgewerkt en duurzaam huis waar je zó in kunt.
Wil jij deze unieke woning zelf ervaren? Maak snel een afspraak voor een bezichtiging!
Disclaimer:
De op deze website getoonde vrijblijvende informatie is door ons (met zorg) samengesteld op basis van gegevens van de verkoper (en/of derden). Deze tekst is zorgvuldig samengesteld, echter kunnen er geen rechten worden ontleend. Wij staan niet in voor de juistheid of volledigheid daarvan. Wij adviseren u en/of uw makelaar om contact met ons op te nemen bij interesse in een van onze woningen.
Sometimes you come across a home that immediately feels one of a kind.
At Albert Einsteinstraat 52, you’ll find such a remarkable property—elegant, fully finished and surrounded by peace and nature. Located in the sought-after neighborhood of Nobelhorst, this house offers luxurious finishes, modern sustainability and a view that impresses every single day.
This stunning detached home, beautifully situated at the edge of the forest, is truly one to fall in love with. A feast for the eyes. You enter a spacious hallway with an impressive staircase and open gallery. The property features 7 bedrooms, 2 bathrooms, and a luxury kitchen with cooking island. On the ground floor you will find a bedroom with en-suite bathroom. The entire home is equipped with underfloor heating, cooling systems and a heat pump.
More information is available at alberteinsteinstraat52.nl.
Ground Floor
Upon entering, the space feels bright, inviting and comfortable. The ground floor is generously laid out and logically designed, with underfloor heating and high-quality finishes that immediately elevate the living comfort. The luxury kitchen is a true eye-catcher—a place where cooking and gathering come together effortlessly. With modern appliances, plenty of storage and high-end materials, this kitchen perfectly matches the quality of the rest of the home.
The living area offers a beautiful view of the forest, adding peace, greenery and richness to everyday life.
Bedrooms and Bathrooms
With seven spacious bedrooms, there is more than enough room for a large family, a home office, hobbies or guests. The house is also future-proof thanks to the ground-floor bedroom and bathroom—ideal for lifelong living. The second bathroom upstairs is stylish, bright and fully equipped with every comfort.
Garden
The garden is a place to fall in love with: spacious, green and overlooking the adjacent forest. Deer and other wildlife often pass by, giving you the feeling of living in nature all year round. At the same time, the garden offers plenty of privacy and space for multiple seating areas. On private grounds there is parking for two cars, as well as a practical storage shed.
Location
This beautiful home is located in the beloved neighborhood of Nobelhorst, where village-style architecture and charming pedestrian and cycling bridges define the streetscape. A small bridge near the house leads you into the forest within a minute.
Schools, childcare, coffee bar Boon, pancake restaurant Smullen & Spelen and various sports facilities—including bootcamp, outdoor fitness, the rowing club and the 27-hole golf course Almeerderhout—are all within walking distance. The A6 and A27 provide quick access to Amsterdam, Utrecht, Amstelveen and ’t Gooi.
Why You Don’t Want to Miss This Home
* Detached living in the desirable Nobelhorst neighborhood
* Approximately 193 m² of living space
* Sustainable and energy-efficient: heat pump, underfloor heating and 24 solar panels
*Stunning forest views with deer and other wildlife
*Luxury finishes and a high-end kitchen
*7 spacious bedrooms
*Private parking on the property
*Bedroom and bathroom on the ground floor
In Summary
With approx. 193 m² of living space, 24 solar panels, a heat pump, underfloor heating and a beautiful piece of Almere’s forest as the back garden, this home offers both luxury and tranquility. A fully finished and sustainable property that is ready to move into.
Would you like to experience this unique home for yourself? Schedule a viewing today!
Disclaimer
The information shown on this website has been compiled with care based on data provided by the seller and/or third parties. However, no rights can be derived from its contents. We advise you and/or your real estate agent to contact us if you are interested in one of our properties.
The tax appraisal correction relates to the construction type: the home is built using timber frame construction, whereas the appraiser mistakenly listed concrete-frame construction. Lees de volledige omschrijving
Overdracht
- Vraagprijs
- € 1.050.000 k.k.
- Status
- Beschikbaar
- Aanvaarding
- In overleg
Bouw
- Object type
- Eengezinswoning, vrijstaande woning
- Soort bouw
- Bestaande bouw
- Bouwjaar
- 2022
- Soort dak
- Zadeldak bedekt met pannen
Oppervlakte en inhoud
- Woonoppervlakte
- 193 m²
- Perceeloppervlakte
- 335 m²
- Inhoud
- 720 m³
- Externe bergruimte
- 9 m²
Indeling
- Aantal kamers
- 8 kamers (7 slaapkamers)
- Aantal badkamers
- 2 badkamers en 2 aparte toiletten
- Badkamervoorzieningen
- 2 douches, toilet, wastafel, dubbele wastafel, en ligbad
- Aantal woonlagen
- 3 woonlagen
- Voorzieningen
- Balansventilatie, mechanische ventilatie, schuifpui, TV kabel, en zonnepanelen
Energie
- Energielabel
- A
- Energielabel registratie
- 29-11-2025
- Isolatie
- Dakisolatie, dubbel glas, muurisolatie, vloerisolatie en volledig geïsoleerd
- Verwarming
- Gehele vloerverwarming, warmte terugwininstallatie en warmtepomp
- Warm water
- Centrale voorziening
Buitenruimte
- Ligging
- Aan bosrand, aan rustige weg, beschutte ligging, in bosrijke omgeving en in woonwijk
- Tuin
- Tuin rondom
Bergruimte
- Schuur / berging
- Aangebouwde stenen berging
- Voorzieningen
- Elektra
Parkeergelegenheid
- Soort parkeergelegenheid
- Op eigen terrein en openbaar parkeren
Energieverbruik in Almere
Energielabel deze woning
Energielabel A
Publicatie energielabel: 29-11-2025
Stroomverbruik per jaar
(Gemiddelde vrijstaande woning in Almere)
Gasverbruik per jaar
(Gemiddelde vrijstaande woning in Almere)
* Cijfers zijn afkomstig van het CBS en bedoeld als indicatie en kunnen verschillen voor deze woning
Indicatie hypotheeklasten
Eigen inleg:
Spaargeld / overwaarde
Rente:
Laagste 10-jaars rente
Laagste 10-jaars rente
2,85% - Centraal Beheer Groen... - NHG
3,08% - Centraal Beheer Groen... - 80%
Laagste 20-jaars rente
3,29% - Centraal Beheer Groen... - NHG
3,52% - Centraal Beheer Groen... - 80%
Laagste 30-jaars rente
3,41% - Centraal Beheer Groen... - NHG
3,74% - Centraal Beheer Groen... - 80%
Hypotheek:
Bruto maandlasten: € 0 p/m
Netto maandlasten: € 0 p/m
Hoe berekenen we dit?
Het rentepercentage is gebaseerd op de laagste 10 jaars vaste rente voor één hypotheekdeel. De vermelde rente (3.08% zonder NHG) is gecontroleerd op 10-02-2026. Deze berekening is gebaseerd op een annuïteitenhypotheek die volledig wordt afgelost, waarbij de maandlasten gedurende de gehele looptijd gelijk blijven. De werkelijke rente en netto maandlasten kunnen variëren, afhankelijk van uw persoonlijke situatie en de hypotheekverstrekker. Raadpleeg een financieel adviseur voor een nauwkeurige berekening en advies. Aan deze berekening kunnen geen rechten worden ontleend; het dient enkel als indicatie.
Documentatie
Kadastrale kaart
Leefomgeving
Plattegronden PDF
WOZ waarderapport
BAG uittreksel
Brochure
Bezoek onze website
Bezichtiging
Bod uitbrengen
Waardebepaling
Zoekopdracht
Alles downloaden
Zonnegrenzen bekijken
Inwoners in Almere
Cijfers voor postcodegebied 1341
- Totaal aantal inwoners
- 2145 inwoners
- Mannen
- 50%
- Vrouwen
- 50%
Inwoners in Almere
Cijfers voor postcodegebied 1341
- tot 15 jaar
- 32%
- 15 tot 25 jaar
- 6%
- 25 tot 35 jaar
- 45%
- 45 tot 65 jaar
- 15%
- 65 en ouder
- 2%
Huishoudens in Almere
Cijfers voor postcodegebied 1341
- Eenpersoons zonder kinderen
- 16%
- Meerpersoons zonder kinderen
- 22%
- Huishoudens zonder kinderen
- 38%
Huishoudens in Almere
Cijfers voor postcodegebied 1341
- Huishoudens met één kind
- 10%
- Huishoudens met meerdere kinderen
- 51%
- Huishoudens met kinderen
- 61%
Woningen in Almere
Cijfers voor postcodegebied 1341
- Woningen voor 1945
- 1%
- Woningen tussen 1945 en 1965
- 1%
- Woningen tussen 1965 en 1975
- 1%
- Woningen tussen 1975 en 1985
- 1%
- Woningen tussen 1985 en 1995
- 1%
Woningen in Almere
Cijfers voor postcodegebied 1341
- Woningen tussen 1995 en 2005
- 1%
- Woningen tussen 2005 en 2015
- 8%
- Woningen na 2015
- 93%
- Huurwoningen
- 20%
- Koopwoningen
- 80%
Overige in Almere
Cijfers voor postcodegebied 1341
- Gemiddelde WOZ waarde
- € 302.000,-
- Personen onder de 65 met uitkering
- 4%
Overige in Almere
Cijfers voor postcodegebied 1341
- Adressen per km²
- 248
- Stedelijkheid (schaal 1 op 5)
- 20%
Korte feiten over Almere
Almere is een stad en gemeente in de Nederlandse provincie Flevoland, in de polder Zuidelijk Flevoland. De gemeente telt 223.183 inwoners en heeft een totale oppervlakte van 248,77 km², waarvan 129,19 km² land en 119,58 km² water (31 januari 2023, Bron: CBS).
Honig & Huis Makelaardij
Indien u vragen heeft of u wilt een bezichtiging inplannen, dan kunt u gebruik maken van het formulier hiernaast. Er zal daarna op korte termijn contact met u worden opgenomen.
Contact opnemen
Honig & Huis Makelaardij
Honig & Huis is uw betrokken makelaar in Flevoland, gespecialiseerd in verkoop, aankoop en taxaties.
Bij Honig & Huis realiseren we ons het belang van een deskundige partner die u begeleidt door het gehele traject en aandachtig naar uw wensen luistert. Wij besteden zorgvuldig tijd aan het doorgronden van uw behoeften en zetten ons volledig in om optimale resultaten voor u te realiseren.
Gratis waardebepaling
Benieuwd naar de waarde van je huis in de huidige woningmarkt in Lelystad en omgeving? Overweeg je jouw woning te verkopen en wil je graag alle mogelijkheden bespreken? Dan ben je bij ons aan het juiste adres! Wij bieden een gratis waardebepaling van jouw woning, zodat je een goed inzicht krijgt in de actuele marktwaarde. Mocht je dan eventueel geïnteresseerd bent in het verkopen van je woning, dan nemen we samen de verkoopmogelijkheden door. Neem contact met ons op voor meer informatie.
Nieuwste reviews
-
Veerkade 118
Nicoline is heel voorkomend en attent. Zij komt alle afspraken goed na en is ook zeer goed bereikbaar. De contacten die wij hadden, waren he...
-
Groote Noord 2
Nicoline Honig is altijd bereikbaar, snel in haar acties en heeft ons fantastisch begeleid bij de verkoop van onze woning. Ik zou haar bij i...
-
Gerrit van Heemskerkstraat 1
Dankzij de goede inzichten van de makelaar hebben we ons huis goed kunnen verkopen. De makelaar had een open communicatie waardoor we al het...